Tallitila Nurmijärvi
Metsämiehenkuja 1
Valmistuu 3/ 2022
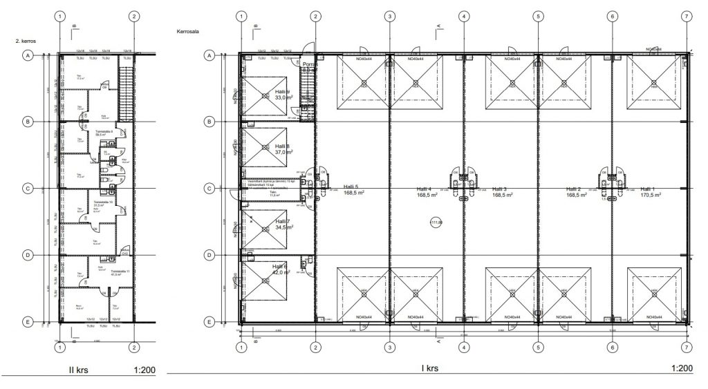
Nurmijärvelle valmistuva tallitila mahdollistaa monenlaista liiketoimintaa nykyaikaisessa kiinteistössä. Kohteesta löydät mm. rutkasti korkeaa hallitilaa isoilla nosto-ovilla sekä käytännölliset toimistotilat. Lisäksi katettua ja lukittavaa ulkovarastotilaa. Aidattu piha.
Kohde sisältää monipuolisesti eri tiloja 33m2 pientallista aina 170m2 läpiajettavaan tallin. Kohteen tilat ovat tarkoitettu myyntiin että vuokrakäyttöön. Tilakoot vaihtelevat 33m2 aina 170m2 asti.
Kohde valmistuu maaliskuussa 2022. Ota yhteyttä ja kysy tiloista rohkeasti lisää!
Käyttötarkoitusesimerkkejä:
- varastotila
- yrityksen työtarvike-/kalustovarasto
- toimistot

Tilojen suunnittelu
Tilat on suunniteltu monipuoliseen käyttöön. Haluamme suunnittelulla mahdollistaa jokaiselle asiakkaalle parhaan tehon tiloista. Hallin teknologia on suunniteltu kannattavasti, jolloin kustannukset pysyvät maltillisina.
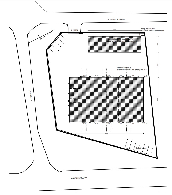
- Oma tontti. Oma tontti isolla aidatulla, asfaltoidulla ja valaistulla pihalla.
- Laadukkaat puitteet. Monikäyttöistä 6m korkeaa tilaa. Isot nosto-ovet käyntiovella.
- Erinomainen sijainti. Huippusijainti vanhan Hämeenlinnantien varressa.
- Edullinen. Edulliset käyttökustannukset.
- Energiatehokas. Maalämpö ja vesikiertoinen lattialämmitys
- Upouusi! Halli valmistuu 3/2022
Varustelu
- WC
- Maalämpö
- Internet-yhteys
- Kylmä ja lämmin vesi
- Loisteputkivalaistus
- Iso moottoroitu nosto-ovi
- Öljyn- ja hiekanerotuskaivo
- Tallentava kameravalvonta
- Vakuutettu kiinteistö
- Valaistu ja asfaltoitu piha
- Valmis isännöinti- ja kiinteistöhuoltosopimus
- Roiskevesitiivis Mastertop-pinnoitettu lattia
- Voimavirta


