toimi- ja varastotilaa lentokentän läheisyydessä.

Kiitoradankuja 3, Vantaa
Vantaan Kiitoradankujalle rakennetaan laadukasta ja hinnaltaan kilpailukykyistä varasto-/ tallitilaa! Valmistuu 5/2022.
Tarvitsetko varasto- tai toimitilaa lentokentän läheisyydestä? AirPark Vantaa rakentuu Kiitoradankujalle aivan Helsinki-Vantaan lentokentän kylkeen. Varastotallien sisäkorkeus on pääosin 5,0 metriä, lukuun ottamatta toimistojen alle jääviä talleja, jotka ovat 2,4 metriä korkeita. Korkeissa halleissa nosto-oven korkeus on 4,0 metriä ja matalissa 2,1 metriä. Kaikkien nosto-ovien leveys on 3,0 metriä. Tallien koot 35-47 m2. Toisessa kerroksessa toimistotila, jossa 180 neliötä.
Airpark sijaitsee liikenteellisesti erinomaisella paikalla lentokentän kupeessa Tuusulanväylän varressa Vantaalla. Sijainti ja tilat palvelevat niin kuluttaja- kuin yritysasiakkaitakin.
Käyttötarkoitusesimerkkejä:
- varastotila
- yrityksen työtarvike-/kalustovarasto
- toimistot
TILOJEN SUUNNITTELU
Tilat on suunniteltu monipuoliseen käyttöön. Haluamme suunnittelulla mahdollistaa jokaiselle asiakkaalle parhaan tehon tiloista. Hallin teknologia on suunniteltu kannattavasti, jolloin kustannukset pysyvät maltillisina
- Laadukkaat puitteet. Monikäyttöistä 5m korkeaa tilaa. Isot nosto-ovet
- Erinomainen sijainti, Huippusijainti Helsinki-Vantaan lentokentän kupeessa, Tuusulanväylän varrella.
- Energiatehokas. Ilmavesilämpöpumppu, vesikiertoinen lattialämmitys
- Upouusi! Halli valmistuu keväällä 2022
VARUSTELU
- WC
- Ilmavesilämpöpumppu, vesikiertoinen lattialämmitys
- Vesi
- Loisteputkivalaistus
- Iso nosto-ovi
- Vakuutettu kiinteistö
- Valaistu ja asfaltoitu piha
- Valmis isännöinti- ja kiinteistöhuoltosopimus
- Roiskevesitiivis epoksi-pinnoitettu lattia
- Voimavirta
TALLI | TILA | m2 | VUOKRA ALV 0% | HUOM! |
113 | Tallitila kork. 5m | 31.4 | 465€ | Vapaa 1.5 |
114 | Tallitila kork. 5m | 31.4 | 465€ | Vapaa 1.5 |
115 | Tallitila kork. 5m | 31.4 | 465€ | Vapaa 1.5 |
116 | Tallitila kork. 5m | 31.4 | 465€ | Vapaa 1.5 |
117 | Tallitila kork. 5m | 31.4 | 465€ | Vapaa 1.5 |
118 | Tallitila kork. 5m | 31.4 | 465€ | Vapaa 1.5 |
119 | Tallitila kork. 5m | 31.4 | 465€ | Vapaa 1.5 |
120 | Tallitila kork. 5m | 45.8 | 679€ | Vapaa 1.5 |
401 | Tallitila kork. 5m | 35.2 | 520€ | Vapaa 1.5 |
402 | Tallitila kork. 5m | 35.2 | 520€ | Vapaa 1.5 |
403 | Tallitila kork. 5m | 35.2 | 520€ | Vapaa 1.5 |
404 | Tallitila kork. 5m | 35.2 | 520€ | Vapaa 1.5 |
405 | Tallitila kork. 5m | 35.2 | 520€ | Vapaa 1.5 |
406 | Tallitila kork. 5m | 35.2 | 520€ | Vapaa 1.5 |
407 | Tallitila kork. 5m | 35.2 | 520€ | Vapaa 1.5 |
408 | Tallitila kork. 5m | 47.3 | 695€ | Vapaa 1.5 |
409 | Autotalli matala | 44.3 | 570€ | Vapaa 1.5 |
410 | Autotalli matala | 47.1 | 600€ | Vapaa 1.5 |
411 | Autotalli matala | 38.5 | 499€ | Vapaa 1.5 |
412 | Autotalli matala | 44.3 | 570€ | Vapaa 1.5 |
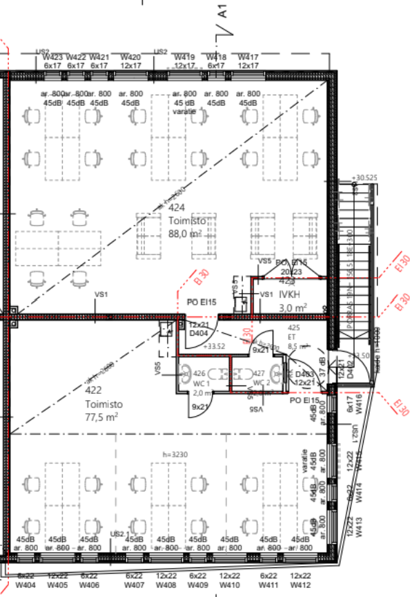
422 | Toimisto 1 | 90 | 1150€ | Vapaa 1.5 |
Toimisto 2 | 80 | 1300€ | Vapaa 1.5 | |
AP1 | Autopaikka 1 | 40€ | Vapaa 1.5 | |
AP2 | Autopaikka 2 | 40€ | Vapaa 1.5 | |
AP3 | Autopaikka 3 | 40€ | Vapaa 1.5 | |
AP4 | Autopaikka 4 | 40€ | Vapaa 1.5 | |
AP19 | Autopaikka 19 tienvarsipaikka | 35€ | Vapaa 1.5 | |
AP20 | Autopaikka 20 tienvarsipaikka | 35€ | Vapaa 1.5 | |

